Połowa bliźniaka z garażem - stan surowy otwarty
Mława Pokaż na mapie ›
Dodane: Czwartek, 12 Luty, 2026 13:07
380 000 zł
2657 zł/m2
Szczegóły ogłoszenia
- Kategoria: Domy / Sprzedaż
- Powierzchnia:143 m2
- Rynek:Pierwotny
- Rok budowy:2024
- Sprzedaż:Pośrednik
- Cena: 380 000 zł / 2657 zł/m2
Opis oferty
Połowa bliźniaka z garażem - stan surowy otwarty Mława, os. MarysieńkaNa sprzedaż połowa domu w zabudowie bliźniaczej, w stanie surowym otwartym, położona w Mławie na cenionym osiedlu Marysieńka, przy ul. Rachockiego.
Nieruchomość zlokalizowana jest w spokojnej i kameralnej okolicy, a jednocześnie w bliskiej odległości od wszystkich punktów niezbędnych do codziennego życia, takich jak: szkoły sklepy, urzędy oraz placówki zdrowotne.
Podstawowe informacje:
-typ zabudowy: bliźniacza
-stan: surowy otwarty
-garaż w bryle budynku
-powierzchnia całkowita domu: 143,20 m²
-powierzchnia użytkowa: 121,40 m²
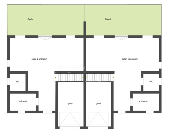
Układ pomieszczeń:
Parter:
-pokój dzienny z aneksem kuchennym
-hol z klatką schodową
-WC
-kotłownia
-garaż
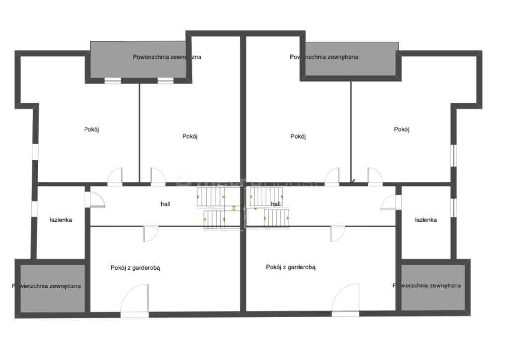
Poddasze (powierzchnia użytkowa):
-pokój z garderobą
-dwa pokoje
-łazienka
-korytarz
Media:
-przyłącze wodociągowe
-przyłącze elektryczne
-przyłącze gazowe
-szambo
-światłowód w drodze
Atuty nieruchomości
-możliwość wykończenia domu według własnych potrzeb
-funkcjonalny i przemyślany układ pomieszczeń
-garaż w bryle budynku
-spokojne osiedle domów jednorodzinnych
-doskonała lokalizacja, blisko centrum i pełnej infrastruktury miejskiej
To idealna propozycja dla osób poszukujących komfortowego domu w atrakcyjnej części Mławy oraz dla inwestorów szukających nieruchomości z potencjałem.
Zapraszamy do kontaktu w celu uzyskania szczegółowych informacji oraz umówienia się na prezentację.
Dostępne powierzchnie i ceny działek na pozostałych aukcjach:
- 0,0836 ha / 119 548 PLN (903/54 + 903/55)
- 0,0830 ha / 118 690 PLN (903/52 + 903/53)
- 0,0827 ha / 118 261 PLN (903/50 + 903/51)
- 0,0828 ha / 118 404 PLN (903/42 + 903/43)
- 0,0826 ha / 118 118 PLN (903/40 + 903/41)
- 0,1051 ha / 150 293 PLN (903/38 + 903/39)
- 0,1192 ha / 170 456 PLN (903/48 + 903/49)
- 0,0413 ha / 380 000 PLN (903/57) połowa domu w zabudowie bliźniaczej
- 0,0416 ha / 380 000 PLN (903/56) połowa domu w zabudowie bliźniaczej
Czy wiesz, że możemy przygotować dla Ciebie prezentację on-line nieruchomości? Skontaktuj się z naszym Agentem i zapytaj o szczegóły.
Pomimo, iż Doradcy Metrohouse przykładają szczególną staranność do rzetelnego prezentowania informacji o nieruchomości, nie zawsze jest możliwa weryfikacja wszystkich danych przekazanych od osób trzecich. Niniejsza prezentacja oferty nie jest ofertą w rozumieniu Kodeksu Cywilnego i ma charakter wyłącznie informacyjny.
Sprawdź zainteresowanie tym ogłoszeniem
Wyświetlenia
Data dodania
Ostatnio widziany
Obserwujących
Wysłane zapytania
Odsłony telefonu
Powiadom o podobnych ogłoszeniach
Lokalizacja: Mława
Kategoria: Nieruchomości » Domy » Sprzedaż
Cena: od 323000 zł do 437000 zł Powierzchnia : od 122 m2 do 164 m2
Chcę otrzymywać powiadomienia o nowych ofertach
- Wypromuj ogłoszenie
- Zgłoś naruszenie
- Drukuj ulotkę
- Edytuj/usuń ogłoszenie
- Udostępnij ogłoszenie
- Dodaj na Facebook














